Надежный и эффективный промышленный котел уголь дрова 0.93 мощностью 0,93 МВт, предназначен для стабильного отопления, горячего водоснабжения и вентиляции производственных, коммерческих и жилищно-коммунальных объектов площадью до 10200 м², температурой теплоносителя на выходе 95 - 115 °С, рабочим давлением 0,3 - 0,6 кгс/см (3,0 - 6,0) МПа. Водогрейный котел КВр-0.93 КБД способен работать на двух видах твердого топлива, где основное - уголь, резервное - дрова.
Конструкция с ручной загрузкой топлива и продуманной многоходовой схемой движения газов обеспечивает высокий КПД, долговечность и простоту в эксплуатации.
Промышленный твердотопливный котел КВр-0.93-115 (95) КБД применяется для автономного отопления, ГВС и вентиляции различных объектов:
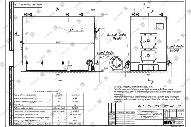
Отопительный водогрейный котел КСВр-0,93 КБД на угле дровах — это стальной, стационарный, водотрубный, горизонтальный, напольный агрегат в легкой обмуровке изготавливается из круглой трубы сталь 20. Конструкция состоит из двух основных частей:
1. Топочной камеры: Зона сжигания твердого топлива, усиленная охлаждаемой газоплотной конструкцией для повышения КПД и энергоэффективности.
2. Конвективной части: Двухходовой пучок труб, где дымовые газы, двигаясь по сложному тракту (вниз-вверх), максимально отдают тепло теплоносителю.
Для надежной и безопасной работы предусмотрено:
Регулировка мощности осуществляется просто: оператор изменяет интенсивность горения, управляя загрузкой топлива и регулируя подачу воздуха через шибер дутьевого вентилятора.
Промышленный котел HeatExpert 0.93 для угля и дров с ручной загрузкой — это результат многолетнего опыта в проектировании надежного промышленного оборудования. Его конструкция продумана до мелочей для обеспечения высокого КПД, долговечности и простоты обслуживания.
Топочная камера представляет собой систему газоплотных водотрубных экранов. Трубы, по которым течет вода, расположены близко друг к другу, промежутки между ними герметично заварены стальной полосой.
После камеры сгорания дымовые газы не сразу уходят в дымоход, а попадают в высокоэффективную конвективную часть, работающую по принципу экономайзера.
Твердотопливные отопительные котлы КВр-0.93 КБД для дров и угля снабжаются чугунными или водяными колосниками.
Чугунные колосники с щелевидными отверстиями собираются в решетку. Размер отверстий обеспечивает свободный провал шлака в зольный короб и подвод необходимого количества воздуха для горения. Мы устанавливаем в свои котлы, только надежные, тяжелые колосники с дополнительными ребрами жесткости, которые выдерживают не один отопительный сезон.
Водяные колосники собраны из труб с межтрубными полосами металла, по всей поверхности которых распределяются отверстия. Теплоноситель, циркулирующий в трубах, охлаждает их. Это предотвращает перегрев и деформацию водяной решетки, обеспечивает длительный срок работы. Маленький диаметр отверстий задерживает недогоревшее топливо на поверхности колосников, не давая провалиться в зольник до полного выгорания. Воздух, подаваемый через отверстия, распределяется равномерно по всему топливному слою и препятствует их забиванию.
Производственный водонагревательный угольно дровяной котел 0.93 МВт имеет съемную облегченную обмуровку на основе плит базальтового волокна (ПТЭ), закрепленных на каркасе и защищенных обшивкой из стального листа.
Преимущество: Такая конструкция минимизирует тепловые потери в окружающую среду, повышая общий КПД котельной установки. Кроме того, она обеспечивает максимальную заводскую готовность – котел поставляется уже утепленным, что значительно ускоряет монтаж.
Конструкция предусматривает легкий доступ для чистки и осмотра:
Надежная конструкция водогрейного котла 0,93 уголь дрова HeatExpert обеспечит срок эксплуатации котла, а ваш объект стабильным и экономичным теплом на протяжении 10 лет.
1. Загрузка: Для удобства загрузки твердого топлива мы предусмотрели две загрузочные дверки, установленные одна над другой. Через верхнюю дверку забрасываются дрова, а через нижнюю укладывается уголь равномерным слоем не более 200 мм.
2. Горение: Воздух на горение твердого топлива подается принудительно дутьевым вентилятором. Интенсивность горения регулируется шибером на воздуховоде.
3. Теплообмен: Дымовые газы, отдав лучистое тепло в топке, последовательно проходят две конвективные ступени (двигаясь вниз, а затем вверх), где интенсивно охлаждаются до 200 °С, отдавая тепло воде в трубах.
4. Удаление продуктов сгорания: Отработанные газы выводятся через шибер на задней стенке котла в газоход. Зола и шлак выгребаются через топочную дверку и через лючок зольника.
Мы осуществляем отгрузку котлов автотранспортом и железнодорожными перевозчиками в любую точку России и стран СНГ. Каждый котел КВр 0,93 КБД дрова уголь надежно упаковывается и крепится для безопасной транспортировки.
Для расчета точной стоимости доставки до вашего города или населенного пункта отправьте нам онлайн-заявку. Наши логисты оперативно подготовят для вас варианты доставки с просчитанной стоимостью и сроками. Вы также можете уточнить любую информацию об условиях покупки котла онлайн, через форму обратной связи.
Чтобы купить промышленный водогрейный угольно дровяной котел КВр-0.93 КБД и получить комплексное решение для вашей котельной, свяжитесь с нами любым удобным способом:
Позвоните в отдел сбыта по телефону:
Напишите в отдел сбыта на электронную почту:
Отправьте онлайн-заявку на коммерческое предложение через сайт.
Наши специалисты помогут вам:
Котельный завод «РЭП» изготавливает котлы 0.93 на дровах и угле не только по типовым проектам, но и по техническому заданию заказчика.
Мы можем изготовить для вас:
Цена водогрейного котла 0.93 МВт уголь дрова в Казахстане включает в себя котельный блок в изоляции, колосники, вентили, затворы, манометры, термометры, вентилятор поддува и предохранительные клапаны. Ниже приведена подробная информация.
Для эффективной и надежной работы котла 0.93 МВт уголь дрова в вашей котельной вам потребуется дополнительное оборудование - автоматика ЩУК, дымосос, насос сетевой и подпиточный, золоуловитель (по желанию), газоходы и переходники для газового тракта, дымовая труба. Мы предлагаем рассмотреть типовые варианты комплектации.
В случае если у вас на объекте уже имеется насосное и тягодутьевое оборудование, мы можем проверить совместимость котла 0.93 МВт уголь дрова нашего производства и вашего оборудования.
Можем изготовить нестандартные узлы для выполнения быстрого монтажа котла - газоходы и узлы обвязки.
Типовую схему монтажа котла вы можете посмотреть во вкладке схемы подключения и монтаж.
Щит водогрейного котла обеспечивает:
Щит водогрейного котла показывает:
Щит водогрейного котла автоматическую остановку с индикацией причины аварии при:
Элементы для управления вентилятором устанавливаются в щите управления котлом.
Элементы управления дымососом и насосом устанавливаются в электросиловом щите котельной.
Автоматика водогрейного котла обеспечивает:
Автоматика водогрейного котла показывает:
Автоматика водогрейного котла осуществляет автоматическую остановку с индикацией причины аварии при:
Элементы для управления вентилятора и дымососом устанавливаются в блоке управления котлом.
Элементы управления насосом устанавливаются в общекотельном щите.
Водогрейный твердотопливный стальной отопительный котел 0.93 МВт уголь дрова, предназначен для получения горячей воды номинальной температурой на выходе из котла от 95 до 115 °С рабочим давлением до 0,6 (6,0) МПа (кгс/см), используемой в системах централизованного теплоснабжения на нужды отопления, горячего водоснабжения. Устанавливается в производственных, промышленных и отопительных котельных.
Монтаж водогрейного котла 0.93 МВт уголь дрова и вспомогательного оборудования в котельной должно производиться в соответствии с проектом и учетом требований СП 89.13330. 2016 «Котельные установки. Актуализированная редакция СНиП II-35-76» и «Правил устройства и безопасной эксплуатации паровых котлов с давлением пара не более 0,07 МПа (0,7 кгс/см2), водогрейных котлов и водоподогревателей с температурой нагрева воды не выше 388 К (115 С). Правильный монтаж котла – залог его надежной и долгой работы.
Чтобы правильно подключить котел 0.93 МВт уголь дрова в котельной необходимо оставить проемы для обслуживания оборудования во время эксплуатации. На представленной здесь схеме указаны их минимальные размеры. Кроме того, в данной примерной схеме монтажа водогрейных котлов и оборудования указан перечень минимально необходимого вспомогательного оборудования для правильной работы котла.
К вспомогательному оборудованию при подключении промышленного водогрейного котла на угле дровах относят - щит управления котлом, насос циркуляционный, насос подпиточной воды, бак запаса воды, расширительный мембранный бак, дымовую трубу, систему газоходов и дымосос, золоуловитель (по желанию).
В случае если подпиточная вода не соответствует по своим характеристикам требованиям к питательной воде, необходимо предусмотреть систему водоподготовки котловой воды.
Для котельных 1 категории, являющиеся единственным источником тепла системы теплоснабжения и обеспечивающие потребителей первой категории, не имеющих индивидуальных резервных источников тепла, необходимо предусмотреть полное резервирование оборудования – подключение 2 (двух) котлов, насосов, ТДМ. Пунктиром обозначено оборудование для резервирования.
Для котельных 2 категории, включающие в себя промышленные и производственные котельные резервирование нужно предусматривать по необходимости.
Образец тепловой схемы подключения котла 0.93 МВт уголь дрова и вспомогательного оборудования в котельной приведен на данной схеме. При эксплуатации очень важно грамотно осуществить подключение оборудования, установить все контрольно измерительные приборы, для контроля параметров работы котельной и запорную арматуру для оперативного переключения потока теплоносителя при плановой или аварийной остановке оборудования. Данную схему можно использовать как пример для разработки под свой объект или заказать у нас разработку индивидуальной схемы для вашей котельной.
Водогрейные котлы производства Котельный завод "РЭП" соответствуют строгим стандартам качества и безопасности. Завод производит котлы КВр-0.93 Д в соответствии с требованиями ГОСТ 30735-3001 по Техническим Условиям завода.
Котлы имеют все необходимые сертификаты соответствия Техническим регламентам Таможенного союза:
Водогрейный котел 0.93 МВт уголь дрова имеет гарантийный срок 24 месяца и срок работы при соблюдении правил монтажа и эксплуатации оборудования 10 лет.

Интервью с главным энергетиком базового комплекса "Сводор" г. Барнаул о работе водогрейного котла нашего производства, отапливающего предприятие с 2008 года.

Отзыв о работе котла КВр производства Котельный завод "РЭП", проработавшего на АО "Водоканал" г. Белокуриха 10 лет. Интервью предоставил заместитель главного директора по производству Суходоев Сергей Николаевич.
Водогрейный котел 0.93 МВт уголь дрова используется для отопления производственных, административных и жилых зданий. Котельный завод производит и поставляет весь перечень сопутствующего котельного оборудования - насосы, газоходы, автоматику, дымососы, дымовые трубы, циклоны и прочее. Специалисты нашего завода бесплатно подберут сопутствующее оборудование, а в случае необходимости, выполнят проектирование, монтаж и пуско-наладку котельной установки.
Подобрать мощность котла по площади важно учитывая не только площадь и объем здания, но и тип зданий и климатические данные региона.
На нашем сайте калькулятор расчета мощности котла учитывает тепло, требуемое на возмещение тепловых потерь через строительные конструкции и потери, вызываемые инфильтрацией (проникновением) наружного воздуха, через их неплотности и периодически открываемые двери.
Наружный строительный объем здания должен определяться умножением площади горизонтального сечения, взятого по внешнему обводу здания на уровне первого этажа на полную высоту здания, измеренную для панельных зданий: от уровня чистого пола (нулевой отметки) до верхней плоскости теплоизоляционного слоя чердачного покрытия, для остальных строений от уровня земли.
Расчетная температура воздуха в отапливаемых зданий принимается в зависимости от типа и назначения здания:
В случае если требуется отопление различных по типу зданий, теплопотребление каждого считается отдельно, полученные значения складываются и подобрать мощность котла нужно в соответствии с общей суммарной мощностью каждого отдельно стоящего задания.
Климатические условия вашего региона принимаются в соответствии с СП 131.13330 Строительная климатология. Данные по всем регионам России занесены в наш калькулятор расчета мощности котла.
Подобрать мощность котла по площади с учетом потребностей объекта в тепле на вентиляцию и горячую воду возможно только с более детальным расчетом. Его вы можете заказать в отделе сбыта котельного завода отправив заявку на электронный адрес sb@kvzr.ru или позвонив по телефонам (38-52) 29-97-41, 29-97-42.